I samband med diskussionerna med Stadsbyggnadskontoer har vi hittat en lösning som delvis kan godkännas utifrån detaljplanen och delvis av reglerna för Attefallsutbyggnad.
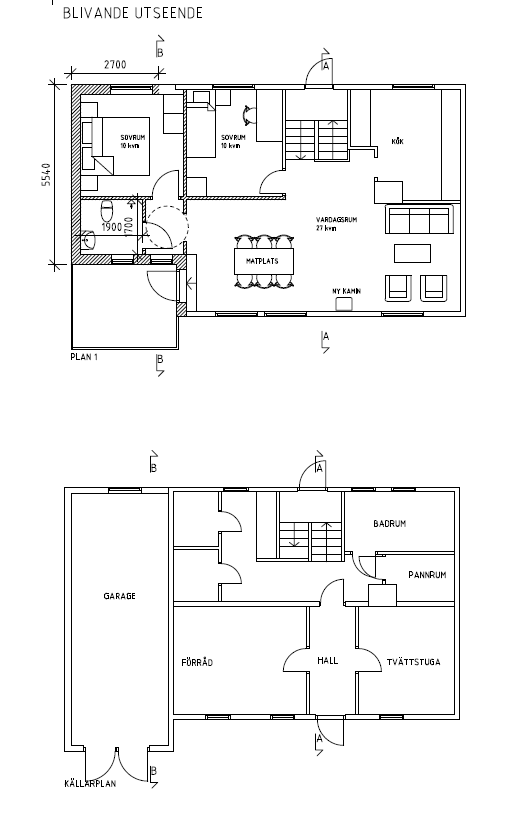
Det har inte blibit exakt som vi tänkt oss från början man vi får till de viktiga punkterna (toalett på övervåning och större vardagsrum och en balkong i söderläge mot gatan. Vi passade på att förlänga garaget 1m till så vi får en lite större balkong (och 3kvm extra garage skadar aldrig).
Med denna löning behöver vi inte heller flytta ytterväggar.
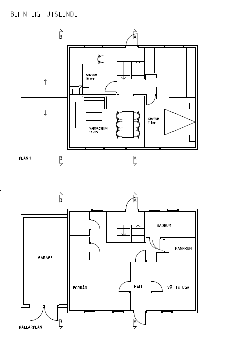
Så här ser huset ut idag


Och så här vill vi ha det i framtiden


Vissa mått i blivande utseende stämmer inte mot nuvarande utseende utan måtten utgår från den bygglovsritning där vi förlänget huset 50 cm (för att följa detaljplanen kan vi inte bygglov på mer, resten är en attefallstillbyggnad)
Detta innebär att vi kommer göra följande:
Riva befintlgit garage och gräva ut så det nya kan byggas lägre
Bygga nytt garage med övervåning
Ta ner 2 innerväggar (och förstärka då dessa kan vara bärande)
Ta upp 2 hål i nuvarande yttervägg, en öppning och en balkongdörr
Byta fasad och samtliga fönster på övervåningen (5st)
Anlägga ny garageuppfart
I dagsläget funderar vi på att göra första och sista steget själva. Det finns även tankar på att göra visst invändigt arbete själva, speciellt i den nybyggda delen.